Deel uw unieke verhaal en win!

Bekijk de actiepagina
Ga naar het woningaanbod

Cazenderstraat 86231 HZMeerssen

Type

Woonhuis

Bouwjaar

1915

Woonoppervlakte

134 m2

Aantal kamers

5

Omschrijving

Wilt u ‘buiten’ wonen, maar niet te ver van een basisschool en de supermarkt? Zoekt u een woning met vrij uitzicht, het liefst aan de voor- en achterzijde? Tussen de kern van Meerssen en 'buurtschap Kasen', in een straat zonder doorgaand verkeer, staat deze recent geheel gerenoveerde en verduurzaamde woning met maar liefst vier slaapkamers en twee badkamers. Als u de rij woningen bekijkt, dan valt dit huis direct op. Helemaal van nu, zowel binnen als buiten. En er is veel meer ruimte dan de voorzijde doet vermoeden! Pak deze kans en wie weet woont u straks in het mooie Meerssen.



Deze woning staat aan de noordkant van Meerssen, omringd door groen. Iets verder in de straat begint een bosgebied, aan de zuidkant van Maastricht Aachen Airport. Meerssen met al zijn voorzieningen is op loop-/fietsafstand, net als Bunde en Ulestraten. Met de auto is het iets meer dan 1 kilometer naar de op- en afrit van de snelweg A2, richting Maastricht en Eindhoven. Meerssen heeft basis- en middelbaar onderwijs, een eigen treinstation en nog veel meer! Als u hier woont, ontbreekt het u aan niets…



Indeling:



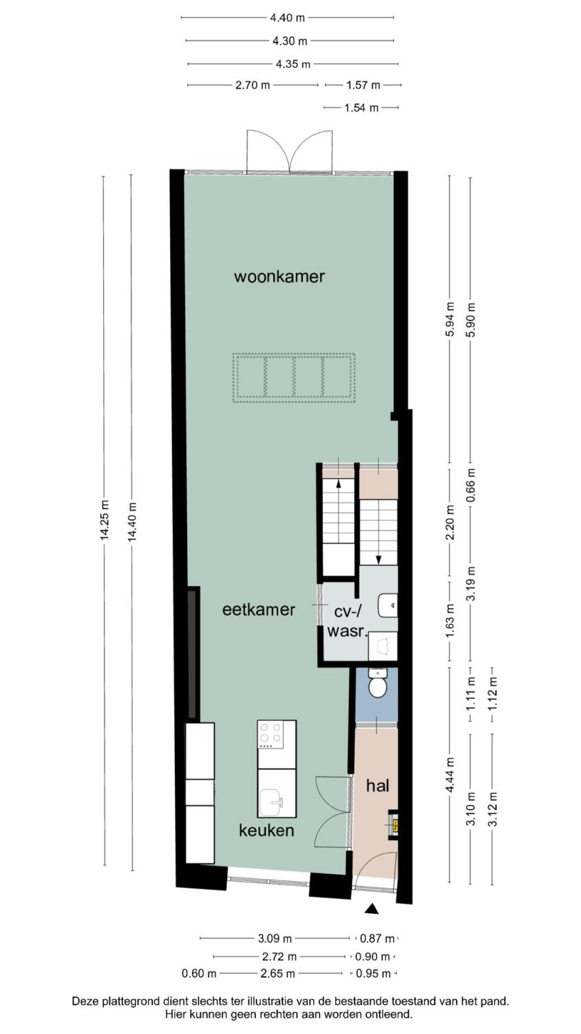
Begane grond:



Parkeer de auto aan de overzijde van de straat, geniet van het uitzicht en loop vervolgens naar de entree van dit fraaie huis. Achter de voordeur is de prachtige hal met een visgraatvloer en twee fantastische zwarte deuren naar de keuken. Je ziet stucwerk, mooie kleuren en aan het einde van de hal is de strak uitgevoerde toiletruimte met wandcloset.

De splinternieuwe keuken is de droom van veel kook- en bakliefhebbers. Het kook-/ spoeleiland is uitgevoerd met een zwarte spoelbak en kraan, goed passend bij de houtkleurige kastenwand. Aan bergruimte is geen gebrek en alle benodigde apparatuur is ingebouwd: een inductie kookplaat met afzuiging, een combi-oven, vaatwasser, koelkast en een vriezer.



Aansluitend is de woon-/eetkamer, een fraai afgewerkte leefruimte die klaar is om in te richten. Een grote pui met openslaande deuren en een lichtkoepel zorgen voor veel lichtinval, en als het donker is zorgt inbouwverlichting voor de juiste sfeer. Aan alles is gedacht: van lage stopcontacten tot mooie plinten en strakke binnendeuren.

Achter deze deuren zijn een wasruimte/bijkeuken, de trap naar de eerste verdieping en een trap naar de kelder.



Eerste verdieping:



Via de trap (die nog naar eigen smaak kan worden afgewerkt) loopt u naar de eerste verdieping. Hier zijn een ruime overloop, twee slaapkamers, een badkamer én een aparte toiletruimte. Wanden en plafonds zijn gestuct, elektra is vernieuwd, er zijn mooie binnendeuren geplaatst en de vloer is afgewerkt.

Aan de voorzijde is een ruime tweepersoonskamer, met uitzicht om in te lijsten. De slaapkamer aan de achterzijde heeft een L-vorm, en ook hier is het uitzicht fraai. In de badkamer heeft u de beschikking over een fraai bad, een separate douche met glazen wand, een handdoekenradiator en een badmeubel met grote spiegel.



Tweede verdieping:



Er is een vaste trap naar de tweede verdieping, waar nog twee slaapkamers en een badkamer zijn. Hiermee is dit huis perfect voor een gezin en voor het laten overnachten van familie of vrienden die op bezoek komen.

De royale slaapkamer aan de voorzijde heeft een groot dakraam en de slaapkamer aan de achterzijde is uitgevoerd met een dakkapel. Kijk rond in beide kamers, maar kijk zeker ook naar buiten… wat een uitzicht!

Vanaf de overloop is er toegang tot de tweede badkamer. Deze ruimte is ingedeeld met een ruime douche, een badmeubel met grote spiegel en een toilet. In een aparte ruimte, aan de overzijde van de hal, hangt de HR-ketel en het mechanisch ventilatiesysteem.



Tuin:



Een tuin van dit formaat vind je niet in de stad! Het terras is van groot formaat en de gevelafwerking van larikshout zorgt voor een buitenruimte met sfeer. Aansluitend is er een groot gazon, perfect voor kinderen om buiten te spelen en voor het creëren van al uw tuindromen.



Bijzonderheden:

  • Zeer recent, hoogwaardig gerenoveerd en verduurzaamd woonhuis;

  • Verwarming en warm water via een HR-ketel (2022 | eigendom);

  • Vier slaapkamers en twee badkamers;

  • Gevelafwerking achterzijde van larikshout (harder en slijtvaster dan grenen en vuren);

  • Geen doorgaand verkeer in de straat;

  • Parkeergelegenheid aan de overzijde van de straat;

  • Vrij uitzicht aan de voor- en achterzijde;

  • Wonen in het buitengebied, op loop-/fietsafstand van een basisschool en overige voorzieningen;

  • Energielabel A.

Lees de volledige omschrijving

Kenmerken

Overdracht
Status
Beschikbaar
Vraagprijs
€ 425.000 k.k.
Aanvaarding
In overleg
Bouwvorm
Soort object
Woonhuis
Soort woning
Eengezinswoning
Type woning
Tussenwoning
Bouwjaar
1915
Bouwvorm
Bestaande bouw
Ligging
Indeling
Woonoppervlakte
134 m²
Perceeloppervlakte
200 m²
Overige inpandige ruimte
14
Inhoud
508
Aantal kamers
5
Aantal slaapkamers
Aantal woonlagen
Energie
Energieklasse
A
Energie einddatum
2036-01-22
Isolatie
Dakisolatie, muurisolatie, vloerisolatie, driedubbel glas
Warmwater
Cv ketel
Verwarming
Cv ketel
C.V.-Ketel
Buitenruimte
Tuin
Achtertuin
Parkeergelegenheid
Garage
Geen garage
Voorzieningen
Isolatie
Parkeerfaciliteiten
Openbaar parkeren
Totaal aantal garages
Dak
Soort dak
Zadeldak
Overig
Permanente bewoning
Ja/Nee
Onderhoud binnen
Uitstekend
Onderhoud buiten
Goed
Huidige bestemming
Woonruimte
Voorzieningen
Voorzieningen
Mechanische ventilatie, dakraam
Kadastrale gegevens
Gemeente
Meerssen
Perceelnummer
580
Oppervlakte
200 m²
Eigendomssituatie
Volle eigendom
Bekijk alle kenmerken

Cazenderstraat 86231 HZ Meerssen

€ 425.000 k.k.

Een impressie

Foto galerij
Plattegrond

Heeft u interesse in deze woning?

Maak direct een afspraak met Jarco

Vergelijkbaar in de buurt