Werkt u in de stad, maar wilt u wonen in een dorp? Bent u ondernemer en zoekt u een fantastische plek in het Heuvelland om wonen met werken te combineren? Of geniet u, na een werkend leven, fulltime van het bourgondische leven? In Noorbeek krijgt u de kans om de huurder te worden van deze duurzame woning met energielabel A++ en twee slaapkamers, gerealiseerd in een prachtige vakwerkhoeve. Hier komt u tot rust, ligt de natuur aan uw voeten en woont u in een huis waar sfeer de absolute boventoon voert.
Het oorspronkelijke bouwjaar is 1828 en in de afgelopen jaren is de hoeve volledig opnieuw opgetrokken met behoud van enkele originele balken, spanten en de vakwerkconstructie. De wanden zijn grotendeels afgewerkt met leemstuc, de geïsoleerde begane grondvloer is voorzien van vloerverwarming en de hardhouten kozijnen zijn uitgevoerd met triple glas. Een warmtepomp zorgt voor een aangename temperatuur en uiteraard zijn de gevels, net als het dak, voorzien van isolatie. Op het dak liggen 8 zonnepanelen, wat als geheel zorgt voor een lage energierekening.
De woning heeft een privé parkeerplaats op eigen terrein en er is een berging voor het stallen van fietsen, containers en tuingereedschap. Op het terrein staan in totaal 11 woningen en de vakwerkhoeve, waar deze woning deel van uitmaakt, bestaat uit slechts 3 woningen.
Locatie:
Noorbeek heeft een zeer centrale ligging in het Heuvelland en leunt tegen de Belgische Voerstreek. Steden als Maastricht, Luik, Aken en Hasselt zijn goed bereikbaar. Noorbeek heeft een rijk verenigingsleven met prachtige tradities als het denhalen, de bronkprocessie en het koningsvogelschieten. Er zijn enkele restaurants en andere voorzieningen in het dorp en in het nabijgelegen Mheer is, net als over de grens in De Plank, een basisschool.
Indeling:
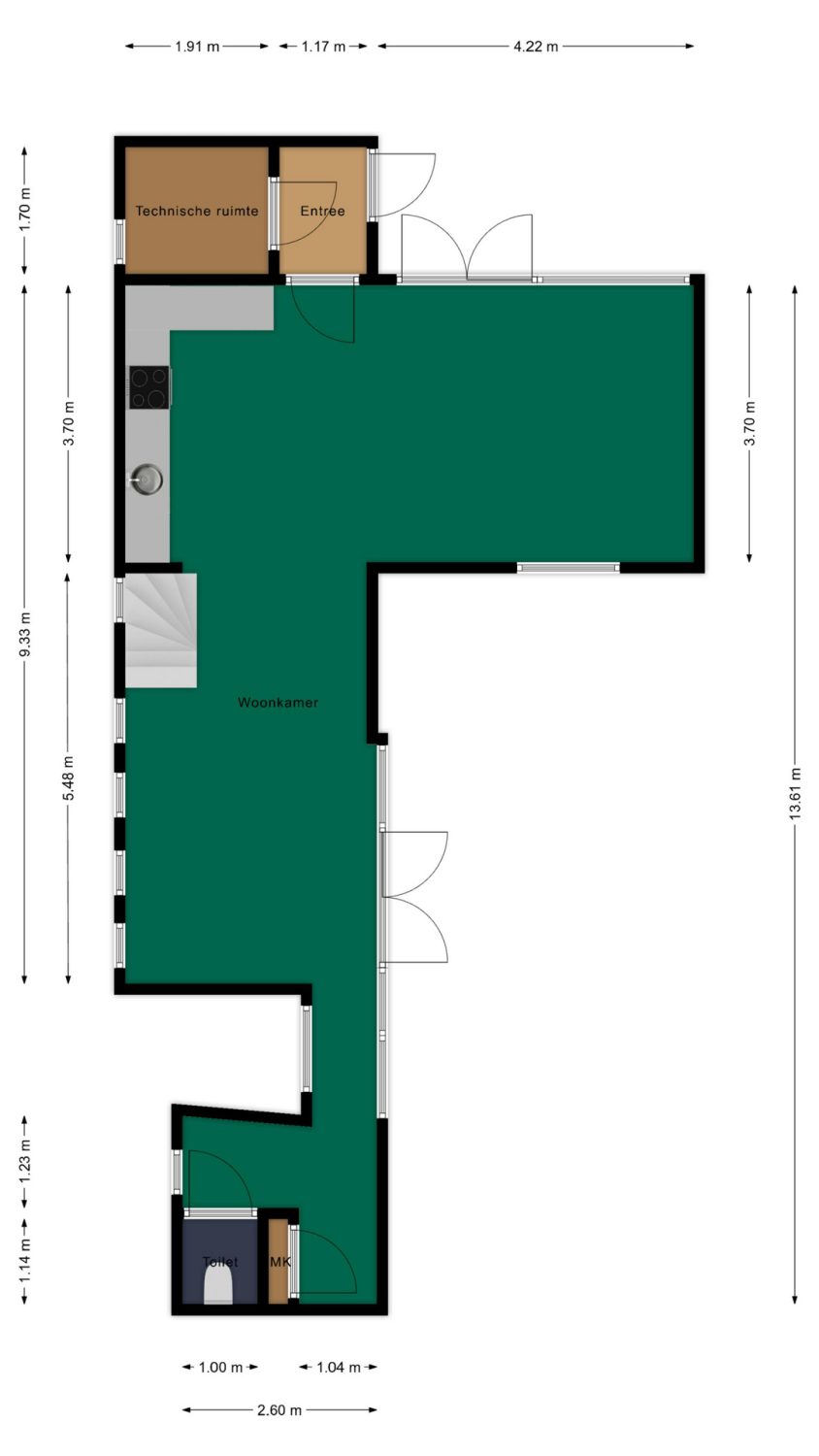
Begane grond:
Aan de achterzijde van de woning is de entree, te herkennen aan het huisnummer en de rode voordeur. De aansluitende hal geeft direct weer dat dit een unieke woning is. Het houten balkenplafond, de binnendeuren, de houtlook pvc-vloer en de kleur op de wanden vormen een fraai geheel. Recht voor u is een inpandige berging met de warmtepomp en aansluiting voor de wasmachine.
De woon-/eetkamer met open keuken is een prachtige leefruimte, die royaal is en huiselijk oogt. Het zitgedeelte is aan de achterzijde, waar de hoge vide en openslaande deuren de sfeer bepalen. Het eetgedeelte, met lichtinval vanaf twee zijden, biedt genoeg ruimte om een grote tafel neer te zetten.
Tussen het zit- en het eetgedeelte is de keuken, waar een fraaie hoekopstelling staat. Deze keuken is een knipoog naar het verleden, qua kleur en stijl. Alle benodigde apparatuur is ingebouwd: een Bora inductie kookplaat met afzuiging, een vaatwasser, combi-oven, koelkast en een vriezer.
Bij het eetgedeelte is een gang die leidt naar de meterkast en het gastentoilet. Hier bevindt zich tevens de mogelijkheid voor een garderobe.
Eerste verdieping:
Volg de trap in de hal naar de eerste verdieping, met prachtig zicht tot in de nok. Ook hier ziet u de vakwerkconstructie met pen-gat verbindingen, leemstuc en mooie spanten. Vanaf de overloop heeft u toegang tot twee slaapkamers, die beiden circa 12.5 m² groot zijn. Grote ramen zorgen ervoor dat de kamers heel licht en ruimtelijk zijn, versterkt door de hoogte van het schuine dak.
De badkamer heeft alle benodigde comfort van een luxe woning: een royale inloopdouche, een tweede toilet, een elektrische handdoekenradiator en een badmeubel met spiegel. Twee brede lades en de zijkast bieden meer dan genoeg bergruimte.
Tuin en terras:
Openslaande deuren in de woonkamer geven toegang tot het privéterras op het zuidwesten, waar u vanaf het begin van de middag tot in de late uurtjes van de zon kunt genieten. Het aansluitende stukje tuin met gazon hoort eveneens bij de woning.
Via de schuifpui bij het eetgedeelte is de binnencour te bereiken, waar een aangename schaduwplek koelte biedt tijdens warme zomerdagen.
Bijzonderheden:
Geschikt voor permanente bewoning;
Geen studentenbewoning toegestaan, huurperiode minimaal 1 jaar;
Oplevering: per direct mogelijk;
Er wordt altijd een antecedentenonderzoek uitgevoerd;
Privé parkeerplaats op eigen terrein;
Berging voor het stallen van fietsen, containers en tuingereedschap;